
|
|
|
|
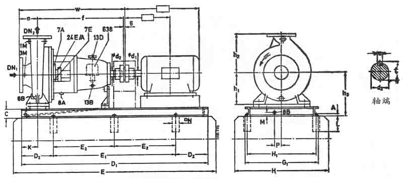
h3 尺 寸 |
||||||||||||||||||||||||||||||||||||||||||||
|
重 量 |
泵 尺 寸 |
電機(jī)型號(hào) |
180L |
200L |
225S |
225M |
280S |
280M |
315S |
315M |
355S |
355M |
|
|
|
|
|
|
|
|
|
||||||||||||||||||||||||||
|
泵型號(hào) |
kg |
|
Φd14p |
48 |
55 |
60 |
60 |
65 |
75 |
75 |
80 |
90 |
90 |
|
|
|
|
|
|
|
|
|
|||||||||||||||||||||||||
|
DH1 |
DH2 |
W |
A |
f |
d2 |
h1 |
h2 |
K |
u |
t |
2p |
- |
55 |
- |
55 |
60 |
65 |
65 |
65 |
65 |
70 |
70 |
|
|
|
|
|
|
|
|
|||||||||||||||||
|
|
485 |
300 |
250 |
926 |
200 |
720 |
60 |
425 |
600 |
150 |
18 |
64 |
|
|
|
|
|
668 |
668 |
668 |
668 |
668 |
668 |
668 |
|
|
|
|
|
|
|
|
|||||||||||||||
|
250-500 |
570 |
300 |
250 |
926 |
200 |
720 |
60 |
425 |
670 |
150 |
18 |
64 |
|
|
|
|
|
718 |
718 |
718 |
718 |
718 |
718 |
718 |
|
|
|
|
|
|
|
|
|||||||||||||||
|
底
座 代 號(hào) |
|
10 |
11 |
|
|||||||||||||||||||||||||||||||||||||||||||
|
300-400 |
820 |
350 |
300 |
1206 |
300 |
900 |
75 |
500 |
630 |
400 |
20 |
79.5 |
|
|
|
|
|
736 |
736 |
736 |
736 |
736 |
736 |
|
|
|
|
|
|
|
|
||||||||||||||||
|
底
座 代 號(hào) |
|
13 |
|
||||||||||||||||||||||||||||||||||||||||||||
|
300 |
860 |
350 |
300 |
1206 |
300 |
900 |
75 |
500 |
750 |
400 |
20 |
79.5 |
|
|
|
|
|
823 |
823 |
823 |
823 |
823 |
823 |
823 |
|
|
|
|
|
|
|
|
|
|
底 座 代 號(hào) |
|
16 |
17 |
||||||||||||||||||||||||||||||
底座和基礎(chǔ)尺寸
|
型號(hào) |
重 量 kg |
D1 |
G1 |
C |
D2 |
E1 |
E2 |
H' |
A |
E |
H |
L |
M |
口N |
P |
地腳螺栓 DIN529 |
|
10AN845 |
371 |
1800 |
900 |
243 |
400 |
1000 |
|
834 |
19 |
2040 |
1140 |
350 |
100 |
90 |
200 |
M30×400 |
|
11AN845 |
434 |
2120 |
900 |
243 |
470 |
1180 |
|
834 |
19 |
2360 |
1140 |
350 |
100 |
90 |
200 |
M30×400 |
|
13AN845 |
545 |
2500 |
980 |
263 |
400 |
|
850 |
905 |
20 |
2740 |
1220 |
350 |
100 |
90 |
200 |
M30×400 |
|
16AN845 |
635 |
2500 |
1180 |
263 |
400 |
|
850 |
1105 |
20 |
2740 |
1420 |
350 |
100 |
90 |
200 |
M30×400 |
HPK-SY型泵200-250至300—500型配用中間聯(lián)軸器的安裝圖和尺寸表